Meetings at The Disney's Grand Californian Hotel & Spa (California)

Facilities
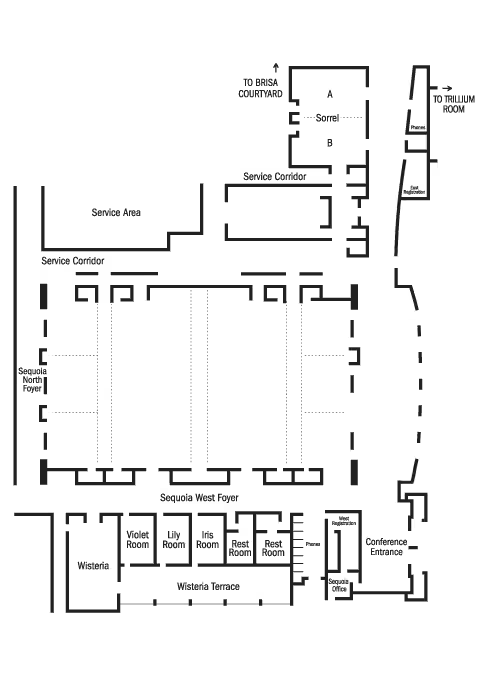
Floor Plan
Dimensions / Capacity
Master Floorplans
Sequoia Ballroom

Select a Facility to see more information

Facility Guide e-brochure with Master Floor Plan Specs

Master Floorplans
Trillium and Bris Courtyard

Select a Facility to see more information

Facility Guide e-brochure with Master Floor Plan Specs

Ballrooms
Sequoia Ballroom

State-of-the-art technology meets turn-of-the century splendor in the Sequoia Ballroom. Our 11,900-square-foot ballroom is sure to inspire and impress your attendees.

Square Feet 11,900
Width 85
Length 244
Ceiling Height 23
Theatre Style 1,200
School Room 800
Conference X
U-Shape X
Banquet 840
Reception 1,200

Facility Guide e-brochure with Master Floor Plan Specs

Ballrooms
Sequoia North Ballroom
Square Feet 5,850
Width 85
Length 72
Ceiling Height 23
Theatre Style 600
School Room 400
Conference X
U-Shape X
Banquet 420
Reception 836

Facility Guide e-brochure with Master Floor Plan Specs

Ballrooms
Sequoia South Ballroom
Square Feet 5,850
Width 85
Length 72
Ceiling Height 23
Theatre Style 600
School Room 400
Conference X
U-Shape X
Banquet 420
Reception 836

Facility Guide e-brochure with Master Floor Plan Specs

Ballrooms
Sequoia Ballroom ABC
Square Feet 2,510
Width 88
Length 24
Ceiling Height 23
Theatre Style 210
School Room 120
Conference 52
U-Shape 48
Banquet 120
Reception 339

Facility Guide e-brochure with Master Floor Plan Specs

Ballrooms
Sequoia Ballroom A
Square Feet 630
Width 33
Length 24
Ceiling Height 23
Theatre Style 70
School Room 40
Conference 16
U-Shape 14
Banquet 40
Reception 49

Facility Guide e-brochure with Master Floor Plan Specs

Ballrooms
Sequoia Ballroom B
Square Feet 630
Width 27
Length 24
Ceiling Height 23
Theatre Style 70
School Room 40
Conference 16
U-Shape 14
Banquet 40
Reception 49

Facility Guide e-brochure with Master Floor Plan Specs

Ballrooms
Sequoia Ballroom C
Square Feet 630
Width 26
Length 24
Ceiling Height 23
Theatre Style 70
School Room 40
Conference 16
U-Shape 14
Banquet 40
Reception 49

Facility Guide e-brochure with Master Floor Plan Specs

Ballrooms
Sequoia Ballroom D
Square Feet 3,315
Width 37
Length 85
Ceiling Height 23
Theatre Style 320
School Room 250
Conference X
U-Shape X
Banquet 40
Reception 49

Facility Guide e-brochure with Master Floor Plan Specs

Ballrooms
Sequoia Ballroom E
Square Feet 3,315
Width 38
Length 85
Ceiling Height 23
Theatre Style 320
School Room 250
Conference X
U-Shape X
Banquet 220
Reception 474

Facility Guide e-brochure with Master Floor Plan Specs

Ballrooms
Sequoia Ballroom FGH
Square Feet 2,510
Width 88
Length 24
Ceiling Height 23
Theatre Style 210
School Room 120
Conference 52
U-Shape 48
Banquet 120
Reception 359

Facility Guide e-brochure with Master Floor Plan Specs

Ballrooms
Sequoia Ballroom F
Square Feet 630
Width 88
Length 26
Ceiling Height 24
Theatre Style 70
School Room 40
Conference 16
U-Shape 14
Banquet 40
Reception 49

Facility Guide e-brochure with Master Floor Plan Specs

Ballrooms
Sequoia Ballroom G
Square Feet 630
Width 27
Length 24
Ceiling Height 23
Theatre Style 70
School Room 40
Conference 16
U-Shape 14
Banquet 40
Reception 49

Facility Guide e-brochure with Master Floor Plan Specs

Ballrooms
Sequoia Ballroom H
Square Feet 630
Width 26
Length 24
Ceiling Height 23
Theatre Style 70
School Room 40
Conference 16
U-Shape 14
Banquet 40
Reception 49

Facility Guide e-brochure with Master Floor Plan Specs

Ballrooms
Sequoia BSouth Foyer
Square Feet 2,315
Width X
Length X
Ceiling Height 12'-24'9"
Theatre Style X
School Room X
Conference X
U-Shape X
Banquet X
Reception 331

Facility Guide e-brochure with Master Floor Plan Specs

Meeting Rooms
Trillium Room

Adjacent to the gorgeous and winding Brisa Courtyard, the Trillium Room is ideal for your moderate-sized meeting or reception, comfortably accommodating up to 300 attendees.

Square Feet 2,660
Width 76
Length 34
Ceiling Height 12'6"
Theatre Style 300
School Room 180
Conference 60
U-Shape 40
Banquet 180
Reception 300

Facility Guide e-brochure with Master Floor Plan Specs

Meeting Rooms
Trillium Room A

Adjacent to the gorgeous and winding Brisa Courtyard, the Trillium Room A is ideal for your moderate-sized meeting or reception, comfortably accommodating up to 120 attendees.

Square Feet 875
Width 25
Length 34
Ceiling Height 12'6"
Theatre Style 100
School Room 60
Conference 22
U-Shape 20
Banquet 60
Reception 120

Facility Guide e-brochure with Master Floor Plan Specs

Meeting Rooms
Trillium Room B

Adjacent to the gorgeous and winding Brisa Courtyard, the Trillium Room B is ideal for your moderate-sized meeting or reception, comfortably accommodating up to 120 attendees.

Square Feet 900
Width 27
Length 34
Ceiling Height 12'6"
Theatre Style 100
School Room 60
Conference 22
U-Shape 20
Banquet 60
Reception 120

Facility Guide e-brochure with Master Floor Plan Specs

Meeting Rooms
Trillium Room C

Adjacent to the gorgeous and winding Brisa Courtyard, the Trillium Room C is ideal for your moderate-sized meeting or reception, comfortably accommodating up to 120 attendees.

Square Feet 885
Width 24
Length 34
Ceiling Height 12'6"
Theatre Style 100
School Room 60
Conference 22
U-Shape 20
Banquet 60
Reception 120

Facility Guide e-brochure with Master Floor Plan Specs

Meeting Rooms
Sorrel Room
Square Feet 1,590
Width 48
Length 34
Ceiling Height 12'- 13'6"
Theatre Style 168
School Room 84
Conference 44
U-Shape 40
Banquet 120
Reception 180

Facility Guide e-brochure with Master Floor Plan Specs

Meeting Rooms
Sorrel Room A
Square Feet 795
Width 24
Length 34
Ceiling Height 12'- 13'6"
Theatre Style 70
School Room 50
Conference 20
U-Shape 16
Banquet 50
Reception 90

Facility Guide e-brochure with Master Floor Plan Specs

Meeting Rooms
Sorrel Room B
Square Feet 795
Width 24
Length 34
Ceiling Height 12'- 13'6"
Theatre Style 70
School Room 50
Conference 20
U-Shape 16
Banquet 50
Reception 90

Facility Guide e-brochure with Master Floor Plan Specs

Meeting Rooms
Wisteria Room
Square Feet 1,115
Width 24
Length 47
Ceiling Height 20'6"
Theatre Style 120
School Room 66
Conference 30
U-Shape 28
Banquet 70
Reception 160

Facility Guide e-brochure with Master Floor Plan Specs

Meeting Rooms
Lily Room
Square Feet 370
Width 15
Length 22
Ceiling Height 12
Theatre Style 40
School Room 24
Conference 16
U-Shape 40
Banquet 120
Reception 180

Facility Guide e-brochure with Master Floor Plan Specs

Meeting Rooms
Violet Room
Square Feet 370
Width 15
Length 22
Ceiling Height 12
Theatre Style 40
School Room 24
Conference 16
U-Shape 14
Banquet 20
Reception 49

Facility Guide e-brochure with Master Floor Plan Specs

Meeting Rooms
Iris Room
Square Feet 370
Width 15
Length 22
Ceiling Height 12
Theatre Style 40
School Room 24
Conference 15
U-Shape 14
Banquet 20
Reception 49

Facility Guide e-brochure with Master Floor Plan Specs

Boardrooms
California Boardroom

Style, elegance and comfort are effortlessly blended in our stately California Boardroom. The curved ceiling, high-back leather chairs and Frank Lloyd Wright-inspired hanging lights all add their unique touches of grandeur to a room that is the ideal backdrop for your meeting or conference.

*Capacity is 24 with existing executive chairs. Using banquet chairs raises capacity to 30.

Square Feet 1,080
Width 25
Length 46
Ceiling Height 10' - 19'
Theatre Style X
School Room X
Conference 24*
U-Shape X
Banquet X
Reception X

Facility Guide e-brochure with Master Floor Plan Specs

Outdoor Areas
Adventure Lawn

Select a Facility to see more information

Facility Guide e-brochure with Master Floor Plan Specs

Outdoor Areas
Brisa Courtyard 1

The Brisa Courtyard 1 provides a tranquil, outdoor setting where up to 200 attendees can meet and mingle under California's beautiful, blue skies and shading trees.

Square Feet X
Width X
Length X
Ceiling Height X
Theatre Style X
School Room X
Conference X
U-Shape X
Banquet 120
Reception 200

Facility Guide e-brochure with Master Floor Plan Specs

Outdoor Areas
Brisa Courtyard 2

The Brisa Courtyard 2 provides a tranquil, outdoor setting where up to 140 attendees can meet and mingle under California's beautiful, blue skies and shading trees.

Square Feet X
Width X
Length X
Ceiling Height X
Theatre Style X
School Room X
Conference X
U-Shape X
Banquet 50
Reception 140

Facility Guide e-brochure with Master Floor Plan Specs

Outdoor Areas
Brisa Courtyard 3

The Brisa Courtyard 3 provides a tranquil, outdoor setting where up to 160 attendees can meet and mingle under California's beautiful, blue skies and shading trees.

Square Feet X
Width X
Length X
Ceiling Height X
Theatre Style X
School Room X
Conference X
U-Shape X
Banquet 60
Reception 160

Facility Guide e-brochure with Master Floor Plan Specs